Negozio in vendita

Montecorvino Pugliano, Piazza Europa - Pagliarone
€ 95.000
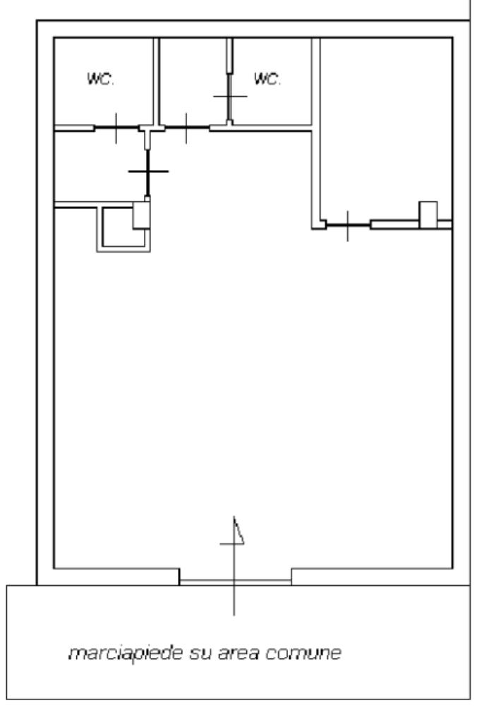
60 Mq 60 Mq
2 bagni 2 bagni

Negozio in vendita

Montecorvino Pugliano, Piazza Europa - Pagliarone

Descrizione annuncio

Montecorvino Pugliano.

Località Pagliarone.

Nei pressi dello svincolo autostradale Pontecagnano Sud - Montecorvino e dell'Aeroporto di Salerno ' Costa d'Amalfi ' .

Proponiamo in vendita locale commerciale di 60 mq ca con 1 vetrina, composto da 2 ambienti, con 2 bagni e antibagno.

Il locale è climatizzato.

Pertinenza dell'immobile vi è una cantina al piano seminterrato.

Il locale è provvisto di ampio parcheggio.

Possibilità di visionare l'immobile tutti i giorni previo appuntamento telefonico

Mostra tutto

Nelle vicinanze

Trasporto pubblico Trasporto pubblico
Aeroporto
Aeroporto
840 m
Montecorvino
Montecorvino
2,7 Km
Scuole Scuole
Istituto Comprensivo "Eleonora Pimentel Fonseca"
2,7 Km
Seminario Arcivescovile "Giovanni Paolo II"
2,7 Km
Farmacia Farmacia
Farmacia
2,4 Km
Supermercati Supermercati
Decathlon
760 m
Supermercati
2,3 Km
Negozi Negozi
H&M
1,3 Km
OVS
1,3 Km
CombìpelUOMO
1,3 Km
CANDIDA
1,3 Km
ZARA
1,4 Km
Ristoranti Ristoranti
Punto Ristoro Maximall
1,2 Km
Ristoranti
2,9 Km
Mostra tutto

Caratteristiche

Rif.:
61176602
Piano:
Terra di 3
Totale piani:
3
Box:
1
Condizionamento:
Autonomo
Ascensore:
No
Mostra tutto
Prezzo Prezzo
€ 95.000
Rata mutuo Rata mutuo
€ 444 / mese
Spese annue Spese annue
€ 0
Proponi il tuo prezzoProponi il tuo prezzo

Classe Energetica

G
G
G
G
G
G
G
G
G
EP globale non rinnovabile:
175.50 kW h/m² anno
EP globale rinnovabile:
175.50 kW h/m² anno
EP invernale del fabbricato:
EP estiva del fabbricato:
Anno di costruzione:
1992
Riscaldamento:
Assente

Ti interessa visionare l'immobile?

Fissa un appuntamento  Fissa un appuntamento

Richiedi informazioni

Clicca su Leggi per aprire l'informativa
* Questi campi sono obbligatori

Calcola il tuo mutuo

Semplice e senza impegno
Anticipo

( % )
Mutuo

( % )

pochi semplici passi

inserisci i tuoi dati
Questionario completato
Grazie per aver richiesto un appuntamento senza impegno con un nostro Consulente del Credito e Assicurativo.

Hai inserito correttamente tutti i dati necessari e a breve riceverai una e-mail con un link da convalidare per inviare i tuoi dati.
Affiliato
Studio Bellizzi Srl
Viale Giuseppe Verdi, 23 84090 Montecorvino Pugliano (SA)

Il nostro staff


  • Matteo De Filippis
    Affiliato

  • Antonio Buonanno
    Responsabile

  • Carmelo Sciurba
    Collaboratore
Viale Giuseppe Verdi, 23 84090 Montecorvino Pugliano (SA)
Zona: M.Rovella - M.Pugliano - S.Tecla - Pagliarone - S.Vito
Mostra su mappa
Orari: dal lunedì al venerdi dalle 09.00 alle 13.00 e dalle 15.30 alle 20.00 - sabato dalle 09.00 alle 13.00
Affiliato
Studio Bellizzi Srl
Viale Giuseppe Verdi, 23 84090 Montecorvino Pugliano (SA)

2026 Tecnocasa Franchising S.p.A. - P. IVA 08365160152 - Via Monte Bianco 60/A 20089 Rozzano (MI). Ogni agenzia ha un proprio titolare ed è autonoma. Privacy policy | Policy utilizzo | Cookie policy