Casa indipendente in vendita

Eboli, Via Ippolito Nievo - Campolongo Secondo
€ 38.000
2 locali 2 locali
49 Mq 49 Mq
2 bagni 2 bagni

Casa indipendente in vendita

Eboli, Via Ippolito Nievo - Campolongo Secondo

Descrizione annuncio

Eboli

Località Campolongo

Proponiamo in vendita

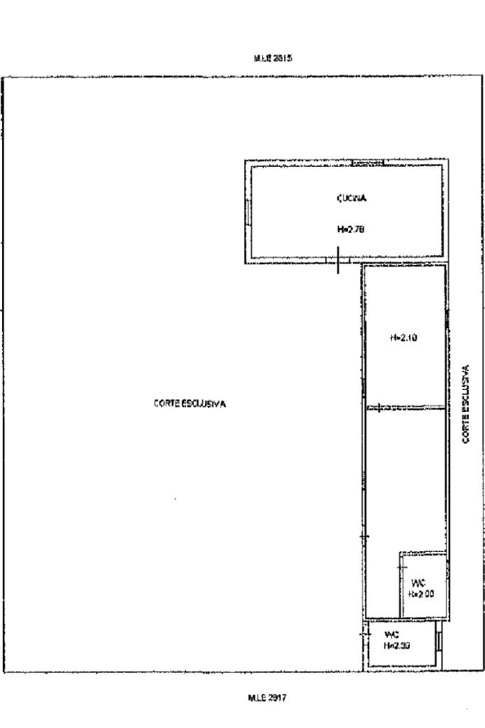
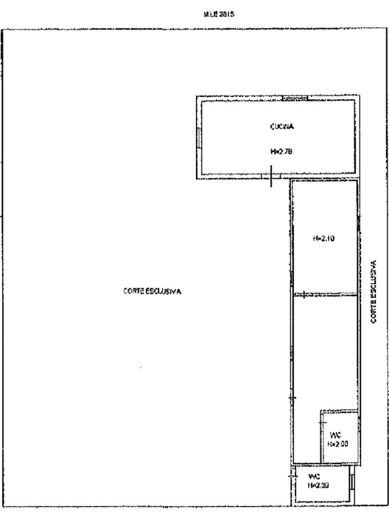
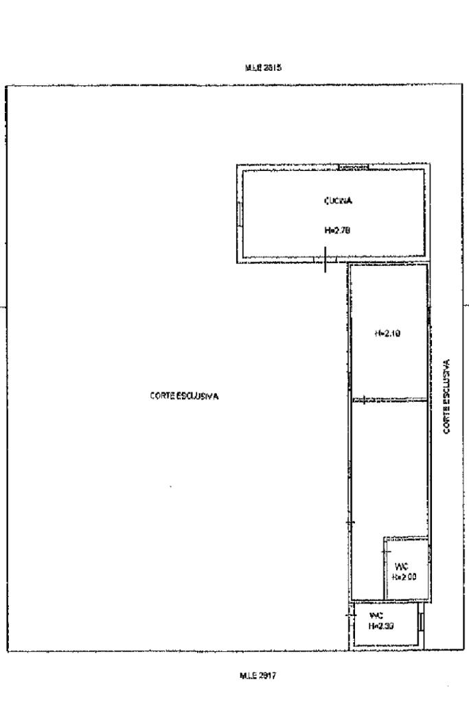
Casa indipendente

Composta da cucina, bagno, 2 camere e bagno esterno.

Presente terrazzo di 50MQ ca e giardino in parte pavimentato di 300MQ ca.

All'interno della proprietà è presente anche il pozzo.

Fronte strada

La soluzione si trova a 500 metri ca, dal mare

A pochi minuti dai servizi principali

Nelle vicinanze del Campolongo Hospital

Possibilità di visionare la casa tutti i giorni previo appuntamento telefonico

Mostra tutto

Nelle vicinanze

Farmacia Farmacia
Farmacia
2,4 Km
Ospedali Ospedali
Campolongo Hospital
1,4 Km
Supermercati Supermercati
Supermercati
2,4 Km
Bar Bar
Bar
2,2 Km
Ristoranti Ristoranti
Ristoranti
2,6 Km
L'Oleandro
2,7 Km
Mostra tutto

Caratteristiche

Rif.:
61153112
Piano:
Terra con giardino di 1
Totale piani:
1
Terrazzi:
1
Camere da letto:
2
Condizionamento:
Assente
Mostra tutto
Prezzo Prezzo
€ 38.000
Rata mutuo Rata mutuo
€ 179 / mese
Spese annue Spese annue
€ 0
Proponi il tuo prezzoProponi il tuo prezzo

Classe Energetica

G
G
G
G
G
G
G
G
G
EP globale non rinnovabile:
175.50 kW h/m² anno
EP globale rinnovabile:
175.50 kW h/m² anno
EP invernale del fabbricato:
EP estiva del fabbricato:
Anno di costruzione:
1990
Riscaldamento:
Assente

Ti interessa visionare l'immobile?

Fissa un appuntamento  Fissa un appuntamento

Richiedi informazioni

Clicca su Leggi per aprire l'informativa
* Questi campi sono obbligatori

Calcola il tuo mutuo

Semplice e senza impegno
Anticipo

( % )
Mutuo

( % )

pochi semplici passi

inserisci i tuoi dati
Questionario completato
Grazie per aver richiesto un appuntamento senza impegno con un nostro Consulente del Credito e Assicurativo.

Hai inserito correttamente tutti i dati necessari e a breve riceverai una e-mail con un link da convalidare per inviare i tuoi dati.
Affiliato
Studio Bellizzi Srl
Viale Giuseppe Verdi, 23 84090 Montecorvino Pugliano (SA)

Il nostro staff


  • Matteo De Filippis
    Affiliato

  • Antonio Buonanno
    Responsabile

  • Carmelo Sciurba
    Collaboratore
Viale Giuseppe Verdi, 23 84090 Montecorvino Pugliano (SA)
Zona: M.Rovella - M.Pugliano - S.Tecla - Pagliarone - S.Vito
Mostra su mappa
Orari: dal lunedì al venerdi dalle 09.00 alle 13.00 e dalle 15.30 alle 20.00 - sabato dalle 09.00 alle 13.00
Affiliato
Studio Bellizzi Srl
Viale Giuseppe Verdi, 23 84090 Montecorvino Pugliano (SA)

2026 Tecnocasa Franchising S.p.A. - P. IVA 08365160152 - Via Monte Bianco 60/A 20089 Rozzano (MI). Ogni agenzia ha un proprio titolare ed è autonoma. Privacy policy | Policy utilizzo | Cookie policy